REQUEST A TOUR If you would like to see this home without being there in person, select the "Virtual Tour" option and your agent will contact you to discuss available opportunities.
In-PersonVirtual Tour

$ 25,000
Est. payment /mo
New
0000 W GENEVA PL Citrus Springs, FL 34434
10,018 Sqft Lot
UPDATED:
Key Details
Property Type Vacant Land
Sub Type Residential
Listing Status Active
Purchase Type For Sale
Subdivision Citrus Spgs Unit 04
MLS Listing ID O6362669
HOA Y/N No
Annual Tax Amount $141
Lot Size 10,018 Sqft
Acres 0.23
Lot Dimensions 80x125
Property Sub-Type Residential
Source Stellar MLS
Property Description
No permits needed! This homesite foundation and permitting is already completed, allowing for an accelerated construction timeline with an estimated completion in as little as five months. The lot is offered together with a construction contract, providing a seamless path to a brand-new home without the delays typically associated with new builds.
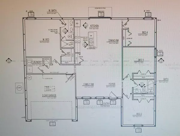
The lot price is $25,000, paired with a separate construction contract of $230,000, for a total package price of $255,000. The home to be built is the highly desired Agate Model, featuring 1,580 sq. ft., a spacious open-concept layout, 4 bedrooms, 2 full bathrooms, a spacious garage, and elevated finishes including 9'5'' ceilings and tile flooring throughout.
Photos shown are of a similar completed home and are provided for reference.
For details on available options, color selections, finishes, and next steps, please inquire for additional information.
The lot price is $25,000, paired with a separate construction contract of $230,000, for a total package price of $255,000. The home to be built is the highly desired Agate Model, featuring 1,580 sq. ft., a spacious open-concept layout, 4 bedrooms, 2 full bathrooms, a spacious garage, and elevated finishes including 9'5'' ceilings and tile flooring throughout.
Photos shown are of a similar completed home and are provided for reference.
For details on available options, color selections, finishes, and next steps, please inquire for additional information.
Location
State FL
County Citrus
Community Citrus Spgs Unit 04
Area 34434 - Dunnellon/Citrus Springs
Zoning PDR
Exterior
Utilities Available Cable Available, Electricity Available, Water Connected
Building
Lot Description Buildable
Lot Size Range 0 to less than 1/4
Sewer Septic Tank
Water Public
Others
Ownership Fee Simple
Special Listing Condition None
Virtual Tour https://www.propertypanorama.com/instaview/stellar/O6362669

© 2025 My Florida Regional MLS DBA Stellar MLS. All Rights Reserved.
Listed by Chaleah Gehrman DENOVO REALTY






